新築一戸建て 堺市南区茶山台3丁1号棟
所在地
堺市南区茶山台3丁1号棟
4,448万円
30.55坪
3LDK
令和8年2月完成予定!
子育てのしやすい住環境!
徒歩圏内に幼稚園から中学校までございます♪
耐震等級3「地震に強い」、断熱性能5「高い省エネ性能」を取得予定!
駐車2台可能(車種による)
天井Bluetoothスピーカー標準装備
オール電化!
業務スーパー片蔵店まで983m
セブンイレブン泉北槇塚台店まで550m
ニトリ泉北パンジョ店まで1470m
茶山公園まで403m
堺市立南図書館まで1412m
泉北園(こども園)まで350m
茶山台小学校まで550m
若松台中学校まで700m
月々の
支払例
支払例
万円
年
%
円
※りそな銀行/借入金4,448万円、返済期間35年、金利0.640%(変動金利)の場合
※審査により金利は変わる可能性があります。
物件概要
- 交通
-
南海泉北線 泉ヶ丘駅 まで 徒歩22分
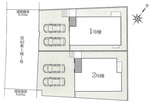
- 接道状況
- 南西側 公道6.2m
- 土地面積
- 公簿 142.13㎡ (42.99坪)
- 建物面積
- 101.02㎡ (30.55坪)
- 築年数
- 2026年 (令和8) 2月
- 建ぺい率
- 40%
- 容積率
- 80%
- 土地権利
- 所有権
- 構造および階数
- 木造 地上2階建
- 小学校区
- 茶山台 (550m)
- 中学校区
- 若松台 (700m)
- 私道負担
- 無
- 地目
- 宅地
- 現況
- 引渡時期
- 予定
- 駐車場
- 2台
- 上水道
- 公共
- 下水道
- 公共
- ガス
- 都市計画
- 市街化区域
- 用途地域
- 1種低層
- 設備・条件
- システムキッチン、カウンターキッチン、食器洗浄乾燥機、IHクッキングヒーター、オール電化、シャンプードレッサー、洗浄便座、浴室乾燥機、駐車場2台分、エコキュート、トイレ2箇所
- 備考
- 取引態様
- 仲介
その他周辺物件
*35年ローン / 金利0.640%の場合
※審査により金利は変わる可能性があります。
詳しくは詳細ページをご覧ください。

