中古一戸建て 岸和田市西大路町
所在地
岸和田市西大路町
1,860万円
31.38坪
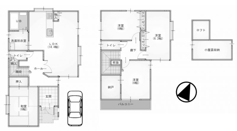
4LDK
中古戸建て 4LDK
室内大変綺麗にお使いです!
駐車1台可能!(車種による)
オークワ和泉小田店まで869m
スギ薬局和泉小田店まで521m
岸和田西大路郵便局まで494m
八木幼稚園まで844m
八木小学校まで705m
久米田中学校まで2104m
月々の
支払例
支払例
万円
年
%
円
※りそな銀行/借入金1,860万円、返済期間35年、金利0.640%(変動金利)の場合
※審査により金利は変わる可能性があります。
物件概要
- 交通
-
阪和線 久米田駅 まで 徒歩16分
- 接道状況
- 南西側 公道6.7m 間口約7.6m
- 土地面積
- 公簿 100.53㎡ (30.41坪)
- 建物面積
- 103.75㎡ (31.38坪)
- 築年数
-
2002年
(平成14)
5月
築23年 - 建ぺい率
- 60%
- 容積率
- 200%
- 土地権利
- 所有権
- 構造および階数
- 木造 地上2階建
- 小学校区
- 八木 (705m)
- 中学校区
- 久米田 (2104m)
- 私道負担
- 無
- 地目
- 宅地
- 現況
- 居住中
- 引渡時期
- 期日指定
- 駐車場
- 有 1台
- 上水道
- 公共
- 下水道
- 公共
- ガス
- 都市ガス
- 都市計画
- 市街化区域
- 用途地域
- 準工業
- 設備・条件
- システムキッチン、天井収納、ロフト、トイレ2箇所
- 備考
- 取引態様
- 仲介
その他周辺物件
*35年ローン / 金利0.640%の場合
※審査により金利は変わる可能性があります。
詳しくは詳細ページをご覧ください。

