新築一戸建て 堺市南区赤坂台5丁2号地
所在地
堺市南区赤坂台5丁2号地
3,880万円
30.96坪
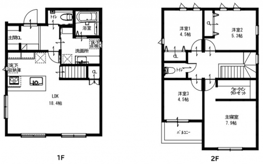
4LDK
新築戸建て 4LDK
マリンホーム施工
駐車3台可能(車種による)
乾太くん標準設置
2階バルコニー水栓あり
赤坂台小学校まで1100m
赤坂台中学校まで1200m
月々の
支払例
支払例
万円
年
%
円
※りそな銀行/借入金3,880万円、返済期間35年、金利0.640%(変動金利)の場合
※審査により金利は変わる可能性があります。
物件概要
- 交通
-
南海泉北線 光明池駅 まで 徒歩30分
- 接道状況
- 北側 公道6.5m
- 土地面積
- 140.07㎡ (42.37坪)
- 建物面積
- 102.38㎡ (30.96坪)
- 築年数
- 2026年 (令和8)
- 建ぺい率
- 40%
- 容積率
- 80%
- 土地権利
- 所有権
- 構造および階数
- 木造 地上2階建
- 小学校区
- 赤坂台 (1100m)
- 中学校区
- 赤坂台 (1200m)
- 私道負担
- 地目
- 宅地
- 現況
- 引渡時期
- 相談
- 駐車場
- 3台
- 上水道
- 公共
- 下水道
- 公共
- ガス
- 都市ガス
- 都市計画
- 市街化区域
- 用途地域
- 1種低層
- 設備・条件
- システムキッチン、カウンターキッチン、食器洗浄乾燥機、IHクッキングヒーター、ウォークインクローゼット、駐車場2台分、駐車場3台分、床下収納、トイレ2箇所
- 備考
- 司法書士売主指定
- 取引態様
- 仲介
その他周辺物件
*35年ローン / 金利0.640%の場合
※審査により金利は変わる可能性があります。
詳しくは詳細ページをご覧ください。

