中古一戸建て 和泉市小田町1丁目
所在地
和泉市小田町1丁目
1,880万円
25.84坪
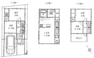
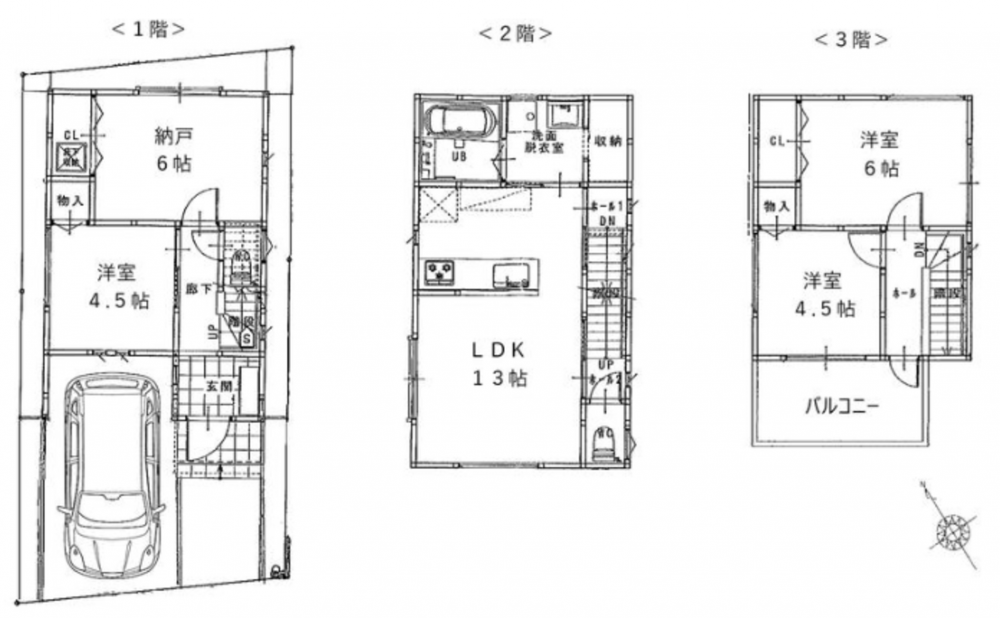
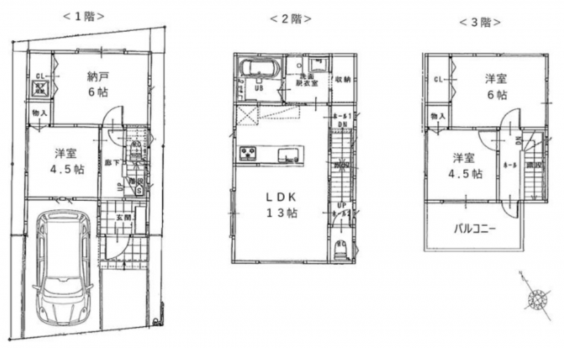
3SLDK
中古戸建て 3SLDK
令和4年4月建築の築浅物件!
リビングに床暖房あり♪
室内丁寧にご使用されています!
和気小学校まで1000m
郷荘中学校まで1500m
月々の
支払例
支払例
万円
年
%
円
※りそな銀行/借入金1,880万円、返済期間35年、金利0.640%(変動金利)の場合
※審査により金利は変わる可能性があります。
物件概要
- 交通
-
阪和線 和泉府中駅 まで 徒歩18分
- 接道状況
- 南西側 私道4.7m
- 土地面積
- 公簿 61.13㎡ (18.49坪)
- 建物面積
- 85.45㎡ (25.84坪)
- 築年数
-
2022年
(令和4)
4月
築4年 - 建ぺい率
- 60%
- 容積率
- 200%
- 土地権利
- 所有権
- 構造および階数
- 木造 地上3階建
- 小学校区
- 和気 (1000m)
- 中学校区
- 郷荘 (1500m)
- 私道負担
- 地目
- 宅地
- 現況
- 居住中
- 引渡時期
- 相談
- 駐車場
- 有 1台
- 上水道
- 下水道
- ガス
- 都市ガス
- 都市計画
- 市街化区域
- 用途地域
- 1種住居
- 設備・条件
- IHクッキングヒーター、床暖房、床下収納、トイレ2箇所
- 備考
- 現状有姿の引渡し。売主の契約不適合責任を免責とします。
- 取引態様
- 仲介
その他周辺物件
*35年ローン / 金利0.640%の場合
※審査により金利は変わる可能性があります。
詳しくは詳細ページをご覧ください。

