マンション ルモン泉大津
所在地
泉大津市東港町
1,080万円
60.94m²
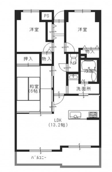
3LDK
■7階建ての3階部分♪
■南東向きバルコニーで通風良好♪
■会話もはずむカウンターキッチンです♪
■キッチンから洗面所への移動も楽々♪
■ガラストップコンロです♪
■給湯器も交換済です♪
■落ち着いた感じの室内です♪
・いずみおおつCITY:徒歩15分
・ファミリーマート泉大津西港町店:徒歩2分
・コーヨー泉大津店:徒歩14分(1067m)
・ホームセンターコーナン南海泉大津店:徒歩18分
・認定こども園ぱる:徒歩3分
・戎小学校 徒歩10分 (750m)
・誠風中学校 徒歩23分 (1800m)
月々の
支払例
支払例
万円
年
%
円
※りそな銀行/借入金1,080万円、返済期間35年、金利0.640%(変動金利)の場合
※審査により金利は変わる可能性があります。
物件概要
- 交通
-
南海本線 泉大津駅 まで 徒歩13分
- 専有面積
- 壁芯 60.94㎡
- バルコニー
- 9.42㎡
- 所在階/階数
- 築年数
-
1987年
(昭和62)
9月
築38年 - 建ぺい率
- 容積率
- 土地権利
- 所有権
- 構造および階数
- RC(鉄筋コンクリート) 造 地上7階建
- 総戸数
- 小学校区
- 戎 (750m)
- 中学校区
- 誠風 (1800m)
- 地目
- 現況
- 空
- 引渡時期
- 即時
- 駐車場
- 空無
- 駐車場月額
- 管理形態
- 全部委託
- 管理方式
- 管理人日勤
- 管理会社
- 株式会社浪速管理
- 管理費
- 5,300円
- 修繕積立費
- 5,410円
- 上水道
- 下水道
- ガス
- 都市計画
- 用途地域
- 2種住居
- 設備・条件
- 備考
-
リフォーム歴【2025年9月】
洗面ユニット新調
全室クロス張替え、床(フローリング等)
フローリング張替、全室クロス張替え、CF張替え、畳表替え、襖張替え、ハウスクリーニング等 - 取引態様
- 仲介
その他周辺物件
*35年ローン / 金利0.640%の場合
※審査により金利は変わる可能性があります。
詳しくは詳細ページをご覧ください。

