マンション ファミ-ルハイツ泉大津セントハ-バ-シティ6番館
所在地
泉大津市なぎさ町
980万円
61.29m²
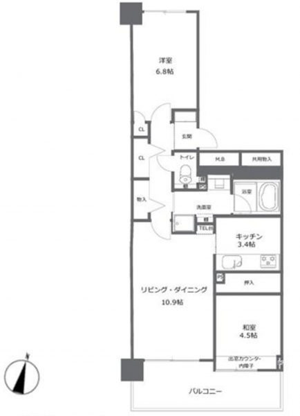
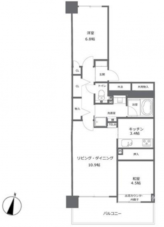
2LDK
陽当たり良好な南面バルコニー
敷地内にコンビニあり
室内大変きれいにお使いです!
ファミリーマート泉大津なぎさ町店まで219m
コーヨー泉大津店まで1022m
サンドラッグ泉大津駅前店まで994m
医療法人吉川会吉川病院まで1050m
泉大津郵便局まで965m
シーパスパークまで847m
浜小学校まで1103m
東陽中学校まで1800m
月々の
支払例
支払例
万円
年
%
円
※りそな銀行/借入金980万円、返済期間35年、金利0.640%(変動金利)の場合
※審査により金利は変わる可能性があります。
物件概要
- 交通
-
南海本線 泉大津駅 まで 徒歩10分
- 専有面積
- 61.29㎡
- バルコニー
- 10.92㎡
- 所在階/階数
- 5階/20階
- 築年数
-
1998年
(平成10)
12月
築27年 - 建ぺい率
- 容積率
- 土地権利
- 所有権
- 構造および階数
- SRC(鉄骨鉄筋コンクリート) 造 地上20階建
- 総戸数
- 小学校区
- 浜 (1103m)
- 中学校区
- 東陽 (1800m)
- 地目
- 現況
- 居住中
- 引渡時期
- 相談
- 駐車場
- 空有
- 駐車場月額
- 9,000〜14,000円/月
- 管理形態
- 全部委託
- 管理方式
- 管理人日勤
- 管理会社
- 管理費
- 5,200円
- 修繕積立費
- 5,800円
- 上水道
- 下水道
- ガス
- 都市計画
- 用途地域
- 準工業
- 設備・条件
- システムキッチン、シャンプードレッサー、洗浄便座、浴室乾燥機、モニタ付インターホン、エレベーター
- 備考
- 取引態様
- 仲介
その他周辺物件
*35年ローン / 金利0.640%の場合
※審査により金利は変わる可能性があります。
詳しくは詳細ページをご覧ください。

