マンション 岸和田コーポラス3号棟
所在地
岸和田市下野町2丁目
750万円
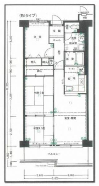
62.82m²
3LDK
中古マンション 3LDK
室内綺麗にお使いです!
セブンイレブン岸和田春木泉町店まで457m
ウエルシア岸和田加守店まで700m
岸和田下野町郵便局まで535m
朝暘小学校まで1067m
野村中学校まで421m
月々の
支払例
支払例
万円
年
%
円
※りそな銀行/借入金750万円、返済期間35年、金利0.640%(変動金利)の場合
※審査により金利は変わる可能性があります。
物件概要
- 交通
-
南海本線 和泉大宮駅 まで 徒歩15分
- 専有面積
- 壁芯 62.82㎡
- バルコニー
-
8.96㎡
(西側)
- 所在階/階数
- 5階/11階
- 築年数
-
1984年
(昭和59)
7月
築41年 - 建ぺい率
- 容積率
- 土地権利
- 所有権
- 構造および階数
- SRC(鉄骨鉄筋コンクリート) 造 地上11階建
- 総戸数
- 小学校区
- 朝陽 (1067m)
- 中学校区
- 野村 (421m)
- 地目
- 現況
- 空
- 引渡時期
- 即時
- 駐車場
- 駐車場月額
- 管理形態
- 全部委託
- 管理方式
- 管理人日勤
- 管理会社
- ㈱キクタメンテナンス
- 管理費
- 3,520円
- 修繕積立費
- 4,520円
- 上水道
- 下水道
- ガス
- 都市ガス
- 都市計画
- 用途地域
- 1種住居
- 設備・条件
- システムキッチン、シャンプードレッサー、洗浄便座、エレベーター
- 備考
- 取引態様
- 仲介
その他周辺物件
*35年ローン / 金利0.640%の場合
※審査により金利は変わる可能性があります。
詳しくは詳細ページをご覧ください。

