マンション 岸和田コーポラス壱号棟 改装済
所在地
岸和田市下野町2丁目
950万円
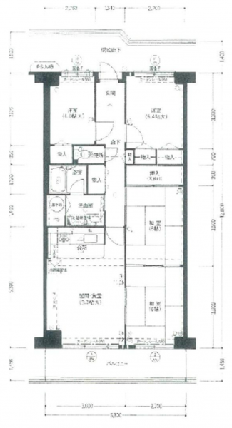
75.20m²
4LDK
中古マンション 4LDK
最上階11階部分!
海が見えるマンションです♪
リフォーム済!
朝暘小学校まで900m
野村中学校まで110m
月々の
支払例
支払例
万円
年
%
円
※りそな銀行/借入金950万円、返済期間35年、金利0.640%(変動金利)の場合
※審査により金利は変わる可能性があります。
物件概要
- 交通
-
南海本線 和泉大宮駅 まで 徒歩12分
- 専有面積
- 75.20㎡
- バルコニー
- 7.72㎡
- 所在階/階数
- 11階/11階
- 築年数
-
1982年
(昭和57)
2月
築44年 - 建ぺい率
- 容積率
- 土地権利
- 所有権
- 構造および階数
- SRC(鉄骨鉄筋コンクリート) 造 地上11階建
- 総戸数
- 131戸
- 小学校区
- 朝陽 (900m)
- 中学校区
- 野村 (110m)
- 地目
- 現況
- 空
- 引渡時期
- 即時
- 駐車場
- 空無
- 駐車場月額
- 10,000円/月
- 管理形態
- 全部委託
- 管理方式
- 管理人日勤
- 管理会社
- 管理費
- 5,232円
- 修繕積立費
- 8,402円
- 上水道
- 公共
- 下水道
- 公共
- ガス
- 都市ガス
- 都市計画
- 用途地域
- 1種住居
- 設備・条件
- 備考
-
【リフォーム内容】
・全室クロス張替
・洋室フローリング変更
・和室襖張替
・畳表替え
・コンロ交換
・トイレ洗面所クッションフロア張替
・ハウスクリーニング
・浴室水栓交換
・洗濯パン交換
・洗面台交換
・給湯器交換 - 取引態様
- 仲介
その他周辺物件
*35年ローン / 金利0.640%の場合
※審査により金利は変わる可能性があります。
詳しくは詳細ページをご覧ください。

